Veröffentlicht am 08.06.2010 11:29

KIM wächst

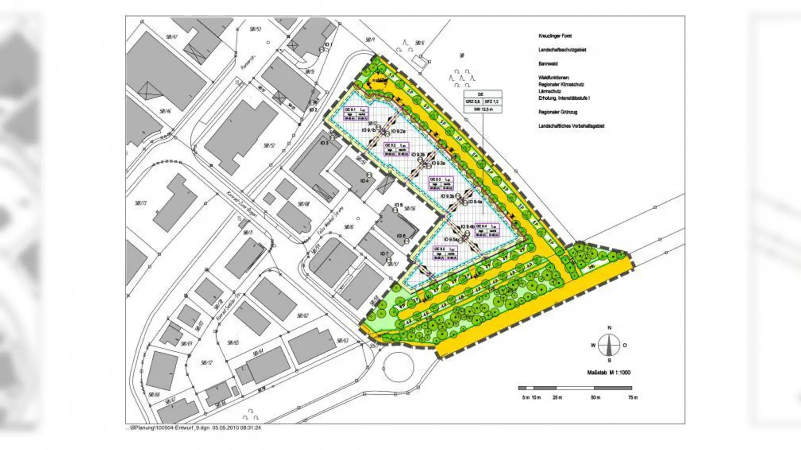
Die Erweiterung der KIM ist für den östlichen Teil vorgesehen und wird für Parkplätze und als Büroraumerweiterung genutzt werden können. (Foto: PI)
Die Erweiterung der KIM ist für den östlichen Teil vorgesehen und wird für Parkplätze und als Büroraumerweiterung genutzt werden können. (Foto: PI)
Die Erweiterung der KIM ist für den östlichen Teil vorgesehen und wird für Parkplätze und als Büroraumerweiterung genutzt werden können. (Foto: PI)
Die Erweiterung der KIM ist für den östlichen Teil vorgesehen und wird für Parkplätze und als Büroraumerweiterung genutzt werden können. (Foto: PI)
Die Erweiterung der KIM ist für den östlichen Teil vorgesehen und wird für Parkplätze und als Büroraumerweiterung genutzt werden können. (Foto: PI)

„Darauf haben wir lange gewartet“, sagt Alexander Czetsch, Geschäftsführer des KIM e.V. „Die Erweiterung brauchen wir dringend in Bezug auf die Verkehrssicherheit im Gewerbegebiet und für dringend notwendige Firmenerweiterungen.“ Die Kraillinger Investitionsmeile (KIM) war vor 13 Jahren auf dem ehemaligen Bundeswehrgebiet zwischen Krailling, Gauting und Germering entstanden und gilt heute als gewerbliches Aushängeschild der Gemeinde Krailling schlechthin.

Mehr Fläche, mehr Parkplätze

Mittlerweile sind über 100 Firmen dort ansässig und die rund 90.000 Quadratmeter reichen nicht mehr aus. „Parkplätze sind eindeutig zu knapp bemessen“, kritisiert Czetsch. „Die Leute stehen teilweise in den Kreisel und in Kreuzungsbereiche hinein. Das gibt eine totale Verkehrsunsicherheit. Glücklicherweise ist noch nie was passiert.“

Doch nun ist Entspannung in Sicht: Der Gemeinderat verabschiedete einen Flächenänderungsplan für das Gewerbegebiet und genehmigte somit die 6100 Quadratmeter große KIM-Erweiterung in östliche Richtung. „Derzeit schreiben wir bereits den Parkplatz aus, damit dieser schon mal provisorisch hergerichtet ist“, sagte Michael Kuch, Bauamtsleiter der Gemeinde Krailling. Außerdem würde schnell mit der Verlegung der Versorgungsleitungen begonnen.

Auch Gegenstimmen

Einstimmig war die Beschlussfassung im Gemeinderat allerdings nicht: Die Kraillinger SPD und Grüne stellten sich dagegen. Martin Hoffmann (SPD) fasste die Gegenstimmen so zusammen: „Die jetzige Erweiterung schafft in unseren Augen weitere Begehrlichkeiten. Wir sehen einfach die Gefahr, dass die KIM in wenigen Jahren das Gebiet um die Pentenrieder Straße immer weiter verdichten wird. Und das wünschen wir nicht.“ Das von der KIM geforderte Plus an Räumlichkeiten könne auch anderes geschaffen werden. „Außerdem können wir nicht zustimmen, dass die Gemeinde für eine halbe Million Parkplätze schafft. Das finden wir schlichtweg unverantwortlich.“

Derweil schreiten die Bauvorbereitungen schon zügig voran. „Im Herbst, aber spätestens im Frühjahr sind wir mit der Verlegung der Versorgungsleitungen fertig. Dann kann mit dem Bauen begonnen werden“, so Michael Kuch. „Auch der Radweg zur KIM kommt im nächsten Jahr.“

north