Veröffentlicht am 07.03.2021 11:14

Letzte „Bausteine” überarbeitet

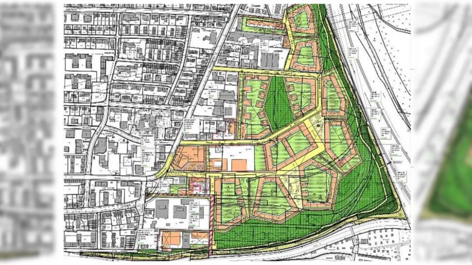
Gut 30 Fußballfelder groß ist das Entwicklungsgebiets „Paul-Gerhardt-Allee“. Der jetzt zum Sieger gekürte Entwurf betrifft die drei Gebäudekomplee, die ganz oben rechts orange eingezeichnet sind. (Foto: LHM)
Gut 30 Fußballfelder groß ist das Entwicklungsgebiets „Paul-Gerhardt-Allee“. Der jetzt zum Sieger gekürte Entwurf betrifft die drei Gebäudekomplee, die ganz oben rechts orange eingezeichnet sind. (Foto: LHM)
Gut 30 Fußballfelder groß ist das Entwicklungsgebiets „Paul-Gerhardt-Allee“. Der jetzt zum Sieger gekürte Entwurf betrifft die drei Gebäudekomplee, die ganz oben rechts orange eingezeichnet sind. (Foto: LHM)
Gut 30 Fußballfelder groß ist das Entwicklungsgebiets „Paul-Gerhardt-Allee“. Der jetzt zum Sieger gekürte Entwurf betrifft die drei Gebäudekomplee, die ganz oben rechts orange eingezeichnet sind. (Foto: LHM)
Gut 30 Fußballfelder groß ist das Entwicklungsgebiets „Paul-Gerhardt-Allee“. Der jetzt zum Sieger gekürte Entwurf betrifft die drei Gebäudekomplee, die ganz oben rechts orange eingezeichnet sind. (Foto: LHM)

Der Wettbewerb für ein neues Wohnquartier an der Paul-Gerhardt-Allee ist entschieden. Nachdem im Rahmen der ersten Jurysitzung kein eindeutiger Sieger ermittelt werden konnte, wurden die ersten drei Preisträger zu einer Überarbeitung aufgefordert. Die Jury empfahl nach einer vor Weihnachten erfolgten Vorstellung dieser überarbeiteten Entwürfe nun einstimmig, für die im Norden des Areals gelegenen Baugebiete WA7(1) und WA7(2) den Entwurf von Maier-Neuberger-Architekten (mit „grabner huber lipp landschaftsarchitekten und stadtplaner”) umzusetzen. Für das benachbarte Gebiet WA8, das ebenfalls Teil des Wettbewerbs war, konnte die Jury trotz Überarbeitung keine konkrete Empfehlung aussprechen, da im derzeitigen Planungsstand noch kein Projekt vollständig überzeugen konnte.

Diese Flächen sind die letzten Bausteine des Entwicklungsgebiets „Paul-Gerhardt-Allee“. Das etwa 30 Fußballfelder große Areal ist das letzte noch zu gestaltende Teil des Entwicklungsprojektes „Zentrale Bahnflächen München“ im Schnittpunkt der Bahnlinien nach Ingolstadt und nach Augsburg. Auf dem bislang gewerblich und industriell genutzten Areal soll ein neues Stadtquartier mit Wohnungen und Arbeitsplätzen entstehen. Im Sommer 2019 zogen die ersten Bewohner ein.

Im Juli 2020 hatte sich das Preisgericht erstmals mit den Arbeiten zum Baugebiet WA 7(1), WA 7(2) und WA 8 befasst. Die drei Baugebiete befinden sich im nördlichen Randbereich im Neubauquartier Paul-Gerhardt-Allee und werden von der Peter-Anders-Straße über die Rhea-Lüst-Straße erschlossen.

Der Sieger-Entwurf von Maier Neuberger Architekten GmbH ist auf der Internetseite der Firma zu sehen: www.mn-arc.eu.

north